MOTORSCHIP

 

Het eerste motorvrachtschip van Nederland was een in 1893 omgebouwde ijzeren pakschuit die voer tussen Rotterdam en Den Haag. Zie ook Scheepsmotor I t/m IV  Nog in 1893 werden er zeven pakschuiten omgebouwd. In Alphen aan den Rijn waren twee werven die al vroeg begonnen met het bouwen van motorschepen. Dat was in de eerste plaats de werf van A. Pannevis en op de tweede plaats de werf van D. Boot. Daarna ging het hard. Overal in Nederland waren werven in staat om motorschepen te bouwen.

De eerste motorschepen waren klein en bestemd voor de pakketvaart tussen de grote steden. Gemiddeld waren ze 19 meter lang en 3 meter breed. De vermogens van de motoren, voornamelijk die van D.W. van Rennes, lagen rond de 8 en 12 pk. Een paar jaar later was de zwaarste motor 20 pk. Ze werden in de open lucht gestuurd met een liggend stuurrad. De stuurhut liet niet lang op zich wachten.

Rond 1900 werden er steeds grotere motorschepen gebouwd. Naar hedendaagse begrippen waren dat nog steeds vrij kleine schepen. Een motorschip van 24 x 4.50 x 1.64 werd al een flink schip genoemd. Op een foto uit 1902 van de werf van D. Boot ligt een nieuw motorschip met een roef en een stuurhut. Dit is een bijzonder vroeg voorbeeld van een schip met een stuurhut. Het schip heeft zoals bijna alle motorschepen een hijstuig. Aan dit hijstuig werd zonodig een hulpzeil gevoerd vandaar dat het schip ook voorzien is van zwaarden.

 

 

Foto Gouwsluis Werf D.Boot in 1902. Het schip is vermoedelijk de Anna Cornelia van A. van Ham uit Brielle.

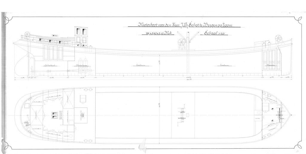
Het schip heeft nog zwaarden en zal wel een hulptuig hebben gehad. 22.60 x 4.64 meter en 71 ton groot.

 www.alphens.nl/oudalphen/index.html

 

Dit type schip zou men pas veel later Luxe Motor gaan noemen. Vaak wordt gezegd dat de aanduiding ‘Luxe’ te maken heeft met de woning achterop. De zeilklippers die in dezelfde periode werden gebouwd hadden ook een flinke woning. Daarbij kwam nog dat een zeilschip een achteronder bezat. Iets wat bij een motorschip niet mogelijk was. De betiteling 'Luxe'  heeft meer te maken met de stuurhut. Voor het eerst werd er niet meer in de open lucht gestuurd.  Schippers maakten vroeger onderscheid tussen een motorschip en bijvoorbeeld een beurtmotor. Tegenwoordig wordt ook een (voormalige) beurtmotor een Luxe Motor genoemd. Rond 1900 voeren er plezier-motorbootjes rond met een houten opbouw met grote ramen. In advertenties werden ze Luxe Motorboten genoemd. Een Luxe Motorboot was altijd een pleziervaartuig. Op een gegeven moment is de term overgesprongen naar het motorvrachtschip.

 

Voorbeeld van een Luxe Motorboot die te zien was op de Amsterdamsche Autoshow in 1908. Het was 6.25 meter lang en had een 5 pk Truscott-motor.

Foto is uit De Revue der Sporten, jrg. 1, no 19, 8 februari 1908.

 

tekening TS 474 Algemeen plan en lijnenplan van motorvrachtboot 'Elisabeth' in de collectie van Maritiem Museum Rotterdam

Motorboot voor den Heer J.TH. Schot te Bergen op Zoom

LSD 1914 motorboot Elizabeth gebouwd 1914 Leiderdorp  motor 52 pk. Maten: 29 x 6.06 meter en 150 ton groot.

 

Voormalige beurtmotor Keulsche Vaart liggend als woonschip in de Scheepmakers-haven te Rotterdam (juli 2019). Bij vroege motorschepen is er een aparte ingang van de roef naast de stuurhut. Bij dit scheepje is dat aan bakboordkant. Op de tekening hierboven is dat juist aan de andere kant.

Motorschip Atalanta van C.J. Touw hier liggend te Cuijk, gebouwd 1923 werf Vuyk te Capelle a/d IJssel. Maten: 35.20 x 5.99 x 2.15 meter en 234 ton groot. 70 pk Bronsmotor

 

Het beurtmotorschip, kortweg de beurtmotor, onderscheid zich van het motorschip (Luxe Motor) door een zwaar uitgevoerd berghout. Daarnaast had de beurtmotor vaak vrij platte ijzeren luiken en een breed gangboord. Er moesten zonodig vaten kunnen staan. Omdat zij vaak met deklast voeren hadden ze een tamelijk hoge stuurhut. Hijstuigen waren algemeen,  ook de niet-beurtmotor was voorzien van een dergelijke installatie. De beurtschepen die vanuit Zeeland op Rotterdam voeren waren gebonden aan de lengtematen die de gemeente Rotterdam stelde. In de beurtvaarthavens meerden men met de kop in de wal. Er moest genoeg vrije doorvaartruimte blijven. In de Oude Haven was de toegestane lengte 23 meter. In het Haringvliet was dat enige meters langer. [1]

 

[1] A.R.Koppejan, De Blikken Motor, pag 32.

Op de voorgrond de Oude haven. Op de hoek van de Spaansche Kade en het Haringvliet het beroemde Hotel Weimar.

Hier logeerde op 22 maart 1921 de wetenschapper Albert Einstein voor zijn vertrek naar de Verenigde Staten.

Rotterdam, Haringvliet. Ansichtkaart uitgegeven door Rotterdamse Scheepvaart Boekhandel, Maritiem Museum 'Prins Hendrik'.

 

Zie ook Scheepsmotor I t/m IV

 

VERVOLG KLIK GESCHIEDENIS 1793-1852

Maak jouw eigen website met JouwWeb